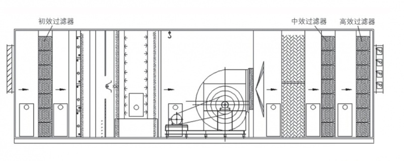
中央空调空气过滤器种类有很多种,多为板式过滤器、折叠式过滤器、袋式过滤器和箱式过滤器四种,过滤级别主要分为初效、中效和高效三种。
中央空调通风系统过滤结构一般为:初效过滤→中效过滤→高效过滤。空气过滤器使用位置不同采用的过滤材料、过滤器形式和过滤级别也有所不同。

第一道过滤为初效过滤器:主要使用板式过滤器或折叠式过滤器。初效过滤主要用于过滤空气中大于5μm以上的尘埃粒子,过滤效率为G3、G4两个级别。我们北昌君控推荐您选用折叠式过滤器,因为折叠式过滤器过滤面积比板式过滤器过滤面积大3-5倍,相对来说容尘量和使用寿命也大。
第二道过滤为中效过滤器:主要用于折叠式过滤器或袋式过滤器。中效过滤主要用于过滤空气中大于1μm以上的尘埃粒子,过滤效率为F5、F6、F7、F8四种级别。中央空调通风系统中袋式过滤器的应用比较广泛,用于二级过滤,高效过滤器的前道过滤器。
第三道过滤为高效过滤器:高效过滤器属于箱式过滤器有有隔板过滤器和无隔板过滤器两种。高效过滤主要用于过滤空气中大于0.3μm以上的尘埃粒子,过滤效率为H10、H11、H12、H13、H14五种级别。高效过滤器主要用于要求洁净度高的通风系统中,经过高效过滤器过滤后的空气可以直接进入室内。
以上信息是由北昌君控为您提供的中央空调空气过滤器,如还想了解相关信息请您查看其他信息。转载请注明是由北昌君控http://www.bktech.com.cn提供的。
